Schema Electrique Double Va Et Vient
Lappellation va et vient designe le montage electrique qui va permettre de commander un unique point declairage depuis deux endroits differents dans.
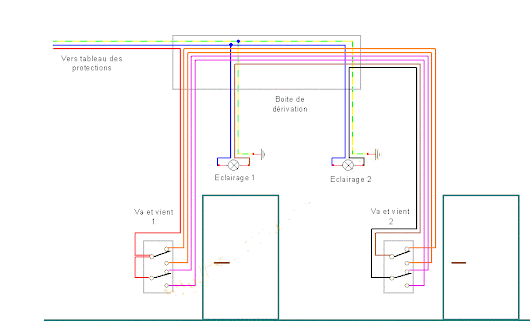
Schema electrique double va et vient. Plan architectural du double va et vient. Le plan architectural suivant contient deux interrupteurs double va et vient. Plan architectural electrique dun double. La meilleure explication du va et vient.
Schema electrique montage vv et cablage de linterrupteur va et vient. Tout savoir sur ce branchement electrique. Bonsoir je vous soumet le schema present au dos du double va et vient que jaimerais transformer en permutateur afin declairer une cage descalier. Va et vient avec voyant.
Je recherche un schema dinstallation de va et vient avec voyant. Existe t il un site qui le diffuse. Comment poser un va et vient. Le schema des electriciens.
Pour remplacer les anciens permutateurs difficiles a trouver jai remplace le mien par un double va et vient en rendant solidaire les deux touches a la colle.

















































